房屋資料
案名 盬水溫馨車墅・學區旁全新翻新宅 案號
地址 台南市鹽水區忠孝路
最新交易狀態帶看中售價
1180萬
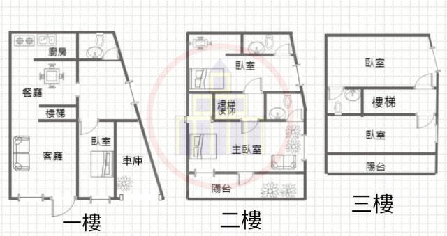
房屋類型 透天 總登記坪數 20.27 坪
格局5房,1廳,4衛,2陽台,1廚房屋齡48年
每坪單價58.21萬/坪公設比
車位一樓平面車位座向朝西
無障礙環境沒有法拍屋 本物件不是法拍屋
建物所在樓層0管理費
管委會沒有中庭沒有
電梯 未知 是否為凶宅 不是
300公尺內嫌惡設施 面前道路 5
面寬 10.5 縱深 11~14
邊間房屋銷售來源不動產經紀人/專業仲介
房屋特色
✨物件亮點

・整棟翻新、水電管線全面更新,免整修即可入住

・廚房中島設計,讓烹飪不只是料理,更是家人間的互動時光

・每間衛浴皆有開窗,採光通風佳、乾爽又衛生

・一樓設有孝親房,長輩起居方便,三代同堂好貼心

・大面寬格局,空間方正好利用,動線流暢、生活舒適

🌸生活機能

・位於盬水國小、盬水國中學區旁,孩子上下課安全又便利

・巷口就是7-11,日常採買超方便

・近中山高速公路、台19線,南來北往交通便捷

・鬧中取靜環境佳,兼具生活機能與居住品質

💡適合對象

✔想讓家人舒適生活的換屋家庭

✔重視屋況、希望直接入住的買方

✔退休返鄉、或在地自住的理想首選

🏠這是一棟有故事、有溫度的家,讓您一走進就能感受到家的歸屬感。

歡迎您的蒞臨賞屋(地)

歡迎您電洽:0960-559-835

歡迎加LINEID0960559835

更多房屋資訊歡迎google搜尋~

點我➤House-Infohttp://www.0960559835.com/

點我➤我的粉絲專頁看更多台南房地產新聞

https://www.facebook.com/May0960559835/?ref=pages_you_manage

大台南不動產新市南科店

以上資訊如有登記錯誤,以登記簿謄本及合約書為主

經紀人:蔡嘉玲(93)南市字第00178號

尚盈不動產有限公司台南市新市區仁愛街183號

在地堅強陣容

打破品牌迷思、在地用心經營

您的真心託付、我們用心服務

急缺農、建、工業地、透天車墅、公寓大樓

一流的團隊、快速的成交、安全交易買賣有保障

馬上來電委託~租售均有服務~代租屋代管理皆可

#南科房屋買賣#善化土地#南科土地#南科買房#善化買地



#善化投資#南科投資#南科房屋買賣

坪數說明
建物登記總坪數20.27土地登記總坪數23.44
主建物坪數20.27停車位坪數
附屬建物坪數公共設施坪數
增建坪數
周邊環境
生活機能鄰近交通
鄰近地標公園綠地月津港親水公園
鄰近學區鹽水國小,鹽水國中,明達國中捷運站
房屋聯絡人資訊
聯絡人姓名王麗梅
(煩請告知聯絡人,您是在889房屋網看到這則廣告,真摯感恩您的幫忙)
手機
0960-559-835(王麗梅)
電子信箱A0960559835@gmail.com
Skype通話 Line加入好友 Line加入好友
所屬公司名稱大台南不動產新市店
公司電話0960559835 (06-5890559)公司傳真06-5898001
公司地址台南市新市區仁愛街183號
網 址http://www.0960559835.com

贊助商廣告
買房,買屋,買房子
台南市鹽水透天
台南鹽水透天-1
台南鹽水透天-1
台南鹽水透天-2
台南鹽水透天-2
台南鹽水透天-3
台南鹽水透天-3
台南鹽水透天-4
台南鹽水透天-4
台南鹽水透天-5
台南鹽水透天-5
台南鹽水透天-6
台南鹽水透天-6
台南鹽水透天-7
台南鹽水透天-7
台南鹽水透天-8
台南鹽水透天-8
台南鹽水透天-9
台南鹽水透天-9
台南鹽水透天-10
台南鹽水透天-10
台南鹽水透天-11
台南鹽水透天-11
台南鹽水透天-12
台南鹽水透天-12
台南鹽水透天-13
台南鹽水透天-13
台南鹽水透天-14
台南鹽水透天-14
台南鹽水透天-15
台南鹽水透天-15
黃金熱銷物件
相似物件

物件留言
請注意,如果您詢問的內容與物件不相符合或是廣告,經過審核,系統將會直接刪除您的發問內容
等待圖示
檢舉不實
等待圖示
●電話:07-7963288  ●電子信箱:服務信箱

本網站保留一切權利,非經正式書面同意,禁止轉貼節錄。建議瀏覽解析度1024*768。